La Choza Home
La Choza Home, Arenas de José Ignacio, abrirá sus puertas en diciembre 2025.
Ubicadas en una de las zonas más exclusivas de Punta del Este, Uruguay, Latinoamérica y el mundo.
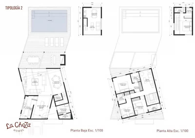
Seis hogares, que incluyen tres dormitorios, uno en suite y dos en semi suite, playroom, living, comedor, bar, fireplace, cocina , cuarto de servicio , galería techada y deck exterior con piscina privada temperada.Contarán con parrillero y fogón, amobladas, equipadas y decoradas con ese estilo único.
El proyecto contempla seguridad perimetral controlada, mantenimiento del predio en general, jardinería tanto de los
espacios comunes como propios , piscinas y limpieza semanal de cada unidad. La administración general y de cada unidad también está contemplada.